ATELIER

SELEZIONE PROGETTI

CONTATTI

Italiano

English

Casa nell'uliveto

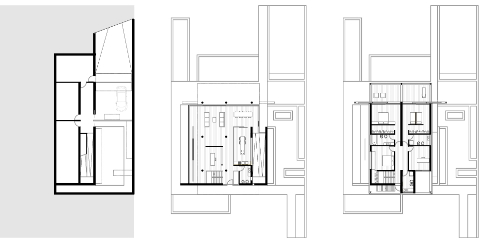
Progetto/ La naturale pendenza del terreno viene modellata attraverso un terrazzamento adibito a giardino pensile, che  stabilisce il livello tra  zona interrata e  fuori terra dell’abitazione. Al piano interrato sono collocati il garage, i locali di servizio, una palestra ed una piscina illuminata naturalmente dall’alto.

 

Percorrendo una rampa si accede alla zona giorno, posta al livello del giardino pensile ed interamente vetrata su due lati. La struttura verticale puntiforme consente la completa fluidità tra spazi interni ed  esterni: le singole zone funzionali sono infatti separate da pareti vetrate e pannelli scorrevoli.

 

La struttura in legno è basculante e permette di modulare la luce naturale all’interno delle stanze e schermare i patii a servizio delle camere,  posizionati su  assi  visuali privilegiati del paesaggio. La copertura, raggiungibile con una scala esterna, è pensata come grande terrazza-solarium.

Documento senza titolo
ANNO 2002
luogo San Donato in Collina, Firenze
committente Privato
fase di progetto Definitivo
FUNZIONI RESIDENZIALE
QUOTA TERRENO + 410 ml
SUPERFICIE TERRENO 800 mq
superficie edificio 320 mq
VOLUME EDIFICIo 980 mc
Progetto AAMM
collaboratori Marco Barone, Angelo Costa, Gaetano Fornaretti

 

 P.IVA 05923890486   All right reserved©AAMM2013

info@aamm.it