<
>
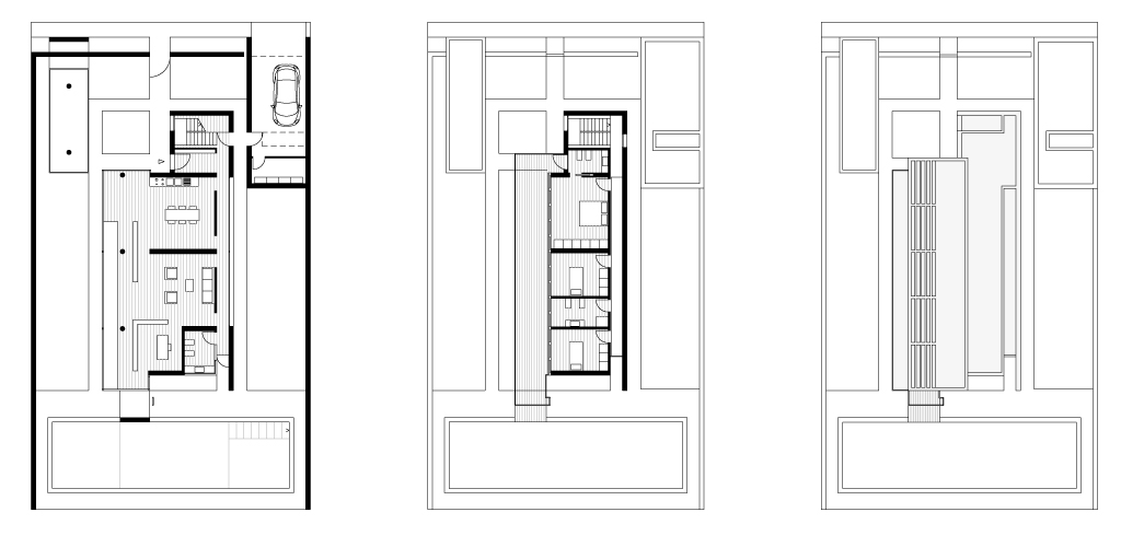
Casa nella Pianura Padana
Progetto/ Il lotto rettangolare a margine dell’edificato segna il limite tra l’espansione del paese verso sud e la campagna. Il progetto prevede di recintare, tramite setti murari, il terreno sui lati confinanti con l’edificato ed il parcheggio pubblico, lasciando libero il lato che prospetta sui campi.
Le funzioni richieste si collocano all’interno di tre volumi paralleli leggermente slittati rispetto al lato strada. Il volume principale dell'abitazione è delimitato da un sistema di lastre perpendicolari che assolvono esigenze strutturali e funzionali. Ai fianchi dell’abitazione un parallelepipedo totalmente chiuso contiene il garage, mentre un altro trasparente è destinato a serra.
Una parete vetrata sul giardino corre nella sua lunghezza la zona giorno al piano terreno; su questa parete vetrata in alto aggetta la terrazza a servizio delle camere, una sorta di lastra sospesa da cui si apre la vista sulla pianura circostante.
| ANNO | 1994 |
| luogo | Busseto, Parma |
| committente | Privato |
| fase di progetto | Definitivo |
| FUNZIONI | Residenziale |
| QUOTA TERRENO | + 33 ml |
| SUPERFICIE TERRENO | 540 mq |
| superficie edificio | 244 mq |
| VOLUME totale | 780 mc |
| strutture verticali | Calcestruzzo armato |
| strutture orizzontali | Calcestruzzo armato |
| rivestimenti | Listelli cotto, doghe legno |
| pavimentazioni | Cotto, legno |
| serramenti | Metallo, legno |
| Progetto | AAMM |
| collaboratori | Marco Barone, Angelo Costa |
P.IVA 05923890486 All right reserved©AAMM2013
info@aamm.it