ATELIER

SELEZIONE PROGETTI

CONTATTI

Italiano

English

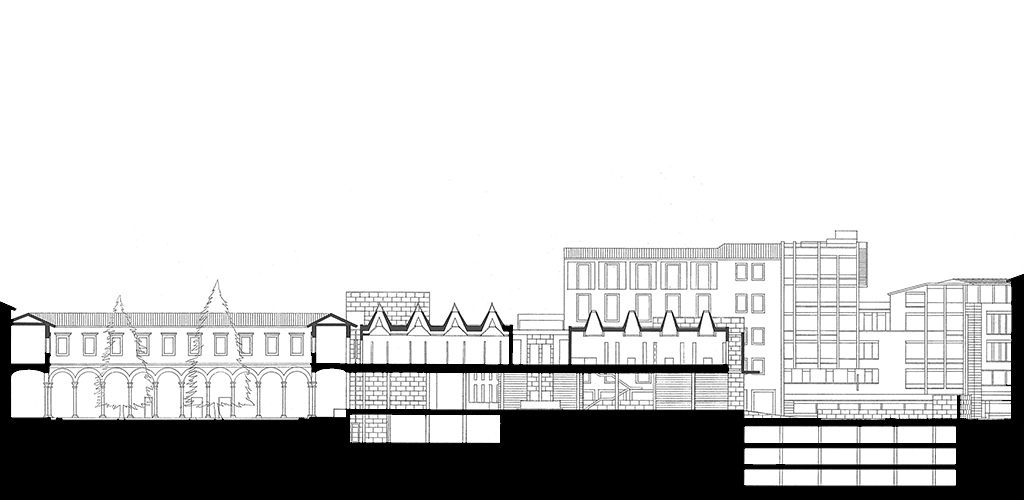
Piazza Brunelleschi

Progetto/ La forma planimetrica della piazza è determinata dall’incontro di due maglie urbane inclinate tra loro: la prima è  parallela a  Via degli Alfani ed influisce sull’orientamento dei chiostri dell’Università, la seconda segue l’inclinazione dell’Ospedale di S. Maria Nuova.

 

La nuova Piazza, a copertura di un parcheggio interrato, è recintata da un muro in pietra ed è pensata come luogo riparato, vero e proprio “interno urbano”. Il nuovo edificio della Biblioteca Umanistica si attesta perpen-dicolarmente alla Piazza e al Chiostro del Silvani.

 

Il piano terreno, un grande loggiato vetrato, accoglie la reception per la sala conferenze e caffetteria; sul  fianco interno sono disposti l'archivio, la sala conferenze, gli uffici  separati  da un sistema di corti e patii. Sull’altro fianco sono collocati il nuovo accesso alla Biblioteca, una piccola cavea teatrale all’aperto  ed un piano d’acqua a copertura della sala espositiva ipogea.

 

Documento senza titolo
ANNO 1999
luogo Firenze
committente Università di Firenze
fase di progetto Concorso di progettazione
FUNZIONI Ricreativo_ Aree dedicate a università, convegni, teatro, esposizione, ristorazione, piazze, giardini pubblici, parcheggi
QUOTA TERRENO + 55 ml
SUPERFICIE TERRENO 9.626 mq
superficie edificio 5.773 mq
VOLUME totale 25.980 mc
strutture verticali Cemento armato, acciaio
strutture orizzontali Cemento armato, acciaio
rivestimenti Pietra, legno
pavimentazioni Pietra, legno
serramenti Metallo, legno
Progetto AAMM
collaboratori Giuseppe Russo

 P.IVA 05923890486   All right reserved©AAMM2013

info@aamm.it